One of the reasons for choosing this target group is being able to offer this segment of the population of San Diego, CA an affordable place to live near the ocean, that provides them everything to live comfortably and be able to practice their favorite sport as often as possible, near their home. Today, hundreds of surfers visit Pacific Beach to surf the waves every month, even during usual cold weather months, all of the the beach front homes available along the beach are vacation rentals, owned by people that rent them when possible for parties and family reunions, they are empty most of the year, since tourists prefer several summer weekends, this limits the capacity of locals to enjoy and live near the beach, one of California’s greatest attractions.
Another reason is the housing crisis that is currently growing in the state of California, where new housing projects are limited, and available housing is getting more and more expensive, something must be done. Now, cities across Southern California are having to plan for a dramatic expansion in housing production. Under state law, the region is required to plan for 1.3 million new homes by 2029.
Millennials in America are the generation that is taking longer to own and invest in real estate, analysts comment that this is due to the several financial crisis they’ve had to go through early in their lives.
Now that the concept of home has evolved into home-office for many of us, more features and purposes must be considered in the design and planning of these new homes. Building with this generations needs in mind is essential.
Site


Floor Plans
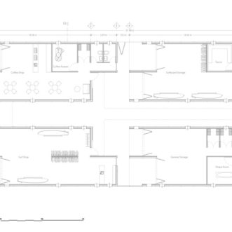
- Ground Floor
- Level 1
- Level 2
- Level 3
- Level 4
Sections
- Section 1
- Section 2
- Section 3
Structure

Structure

Detail
Sustainability
Views

Aerial View

Interior
Main Drawing

Collective Housing in San Diego California – Mass Timber Collective Housing is a project of IaaC, Institute for Advanced Architecture of Catalonia developed for MMTD, Master in Mass Timber Design in 2021/2022 by Student: Juan Bugarin. Faculty: Minna Riska, Dagfinn Sagen. Course: Project 2.








