Home
About
Projects
Programmes
IAAC Life
IAAC Blog 2022
Iaac
Educational Programmes
Media
ground-floor
juan.gilberto.bugarin
April 8, 2022
0
0
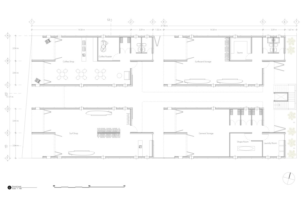
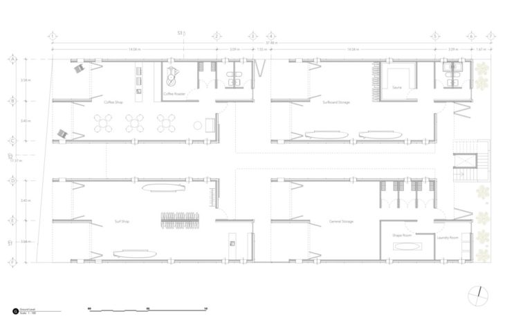
Ground Floor