Questions to ponder:
What if by replacing a small proportion of bricks from a interior wall with terracotta bricks we can cool inner spaces ?
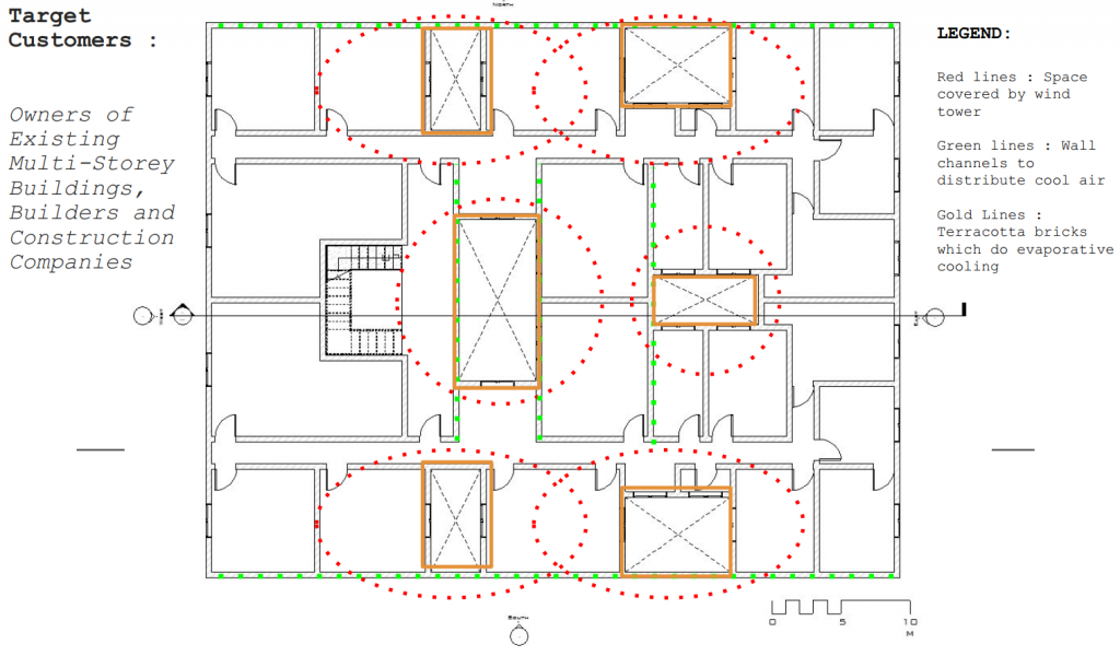
What if by converting shafts of row housing into wind towers , we can create passive cooling system in middle of urban heat islands?
Will architects of the future also design bricks specific to the site as well as the space to reduce cooling loads of the building?
Target:
Ending perpetual dependency on resource heavy active HVAC system in urban housing in response to growing URBAN HEAT ISLAND EFFECT with PASSIVE EVAPORATIVE COOLING SYSTEM.
Context:
Problem:
Existing Urban housing lacks the flexibility of design and structural intervention once construction is done which makes users dependency on constant use of HVAC system permanent. This adds to constant economic constraint on the users living in these dense housings.
These buildings are also most difficult to renovate or demolish because of multiple shareholders which makes these constructions more permanent and constant contributor to HEAT ISLAND EFFECT.

Validation:
Oct 2020 // 2030 European Climate Target Plan The Commission’s proposal to cut greenhouse gas emissions by at least 55% by 2030 sets Europe on a responsible path to becoming climate neutral by 2050 .
2 Oct, 2019 // Energy demand for cooling accounts for nearly 10% of global electricity used around the world.
Cooling systems rely on human-made Hydrofluorocarbons (HFCs), which could account for nearly 20% of climate pollution by 2050, if not phased down and replaced with existing alternatives
8 Nov 2019 // India’s Climate Change Policy: Towards a Better Future
The INDC has set a target of 175 GW of renewable energy by the year 2030 on the strength of the outstanding success of the National Solar Mission. It is reported that this capacity may well be achieved 10 years in advance. The government may raise India’s target to 227 GW for 2030. The target of achieving 40% of power from renewable sources by 2030 is likely to be achieved several years in advance.
16 May 2018 //Around 2.5 billion more people will be living in cities by 2050, projects new UN report
2018 //UNEP’s Sustainable Buildings and Construction Initiative (SBCI) are working to establish knowledge on the base-line emissions from buildings in India, highlight priority issues and opportunities for sustainable buildings and identify a network of experts that can contribute to the aims of Sustainable United Nations (SUN) and SBCI.
Solution:
Solution // Materialization// replacing some bricks in interior walls for evaporative cooling


Opportunity:
Through the essential elements of the technology exists and have been used, they have been proposed in new buildings and mostly public buildings.
Which leaves the existing housing sector where majority of the population lives.
There are about 216 million dwellings in the EU and residential buildings represent about 75% of the 25 billion m2 floor area.
Market:
TAM:
Housing Construction Industry in Sub-Tropical Countries for example India, UAE, South East Asian Countries and Latin American others.
Population of India is 1,369,756,319 with 299,584,361 Households, majority of which are AC dependent and the number is expected to rise.
SAM:
Construction Companies, Private Builders and Government Construction Sector
From $8,526.7 million in 2019, the Indian heating, ventilation, and air conditioning (HVAC) market size is expected to grow to $31,598.6 million by 2030, at a CAGR of 16.0% during the forecast period (2020–2030).
SOM:
Owners of Existing Urban Residential Buildings.
India’s manufacturing sector is growing to become the fifth largest in the world by 2020. Aided by the Indian government’s initiative of ‘Make in India’, the nation’s vision is to make the country a global manufacturing hub.
Team Composition:
Business Model:
Timeline:
Resources and Financing:
Educational Institutions for Research Facilities
- IaaC Barcelona
- Bartlett
FAB- Labs for fabrications support
Financial Backing from Environmental Agencies
- United Nations Environmental Council
- European commission research and innovation
- UNHABITAT
- GRIHA India
Active Users
Architectural Exhibitions
- ICAIA 2021- Amterdam Aug 2021
- ICSIBE 2021 – New York Oct 2021
- ICSABT 2021 – Venice 2021
Motivation:
“ As an Architect we have the most power and responsibility to change the future of our environment, one building at a time starting with one brick at a time.”



