We live in an era where society and architecture are trying to re-connect with nature trough sustainable and ecological design. Architecture is in an ongoing cycle of innovative adaptation, meaning that it is continuously adapting itself and the urban environment to the current political and socio-economic factors and environment. Nowadays, the task is to develop a series of architectural and urban collection of ideas with the purpose of creating complex, polycentric bio-cites and advance ecological architecture. This type of architecture goes beyond a simple new trend or style; It is an architecture that comes from unavoidable consequences of corrupt resource administration and the imminent need towards a more environmentally conscious society.
Architectural construction and design are not limited to the building alone but also influenced by the entire life cycle of the building. From the origin and production of resources, construction, and deconstruction, all the way to the reintegration of materials into the resource cycle. In this matter, increasing demand for wood as a construction material is key to meeting the challenges of our age, enhancing environmental sustainability, economic sustainability, and sustainability for our communities.
The ecological design approach was based, on four main concepts for the project: program, thermodynamics, noise control, and structural innovation.
“>
http://https://youtu.be/f-SmAW4gCLc
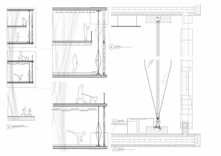
The inspiration for the envelope comes mainly as a result of the initial design concept of solar and ventilation permeability. Simultaneously, the building facade is responding to the double structural layer implemented in the previous module; the team has designed a different environmental solution for each layer. The inner structural elements contain a curtain wall system which function is to control the natural ventilation of enclosed floors.
This system consists of pivoting glass panels that are located all around the building to deal with the different ventilation needs for each space. The second structural layer contains a leaf-like pattern responsible for the solar control of the building. While allowing sufficient daylight inside the building, and access to quality views, the horizontal thickness of the wooden veins increases their size in the south-facing elevations to shield the direct line of sight to the sun. Inspired by the structure of the leaf-like pattern, it was crucial to take into consideration the minimal amount of material needed and the efficiency of the productions of the pieces. As a response to material waste during construction and production, each panel contained within the main structural elements is repeated in a configuration of an 80 cm x 130 cm pattern. This pattern consists of the reiteration of five main connector pieces, one secondary connector piece, seven central veins that are increasing in size, and twelve triangular pieces that decrease in size as they reach their secondary connectors. The vertical repetition of this pattern forms each panel. Subsequently, the horizontal repetition of the panel encloses and protects the building from undesirable direct sunlight, avoiding the overheating of the interior and glare.
Wood is carbon-positive material in its growth phase, generating jobs as it is harvested, reducing labor-time as it is used, and has excellent material properties. Within a building, wood outperforms other materials, using it as an alternative to other materials saves on average 0.9 tons of CO2 per cubic meter. Wood also has the best thermal insulation properties of any mainstream construction material, five times better than concrete, 10 times better than brick and 350 times better than steel. This is because wood’s low thermal mass means that it has minimal ability to conduct either heat or cold, meaning that using timber in buildings makes them more easily able to retain heat.
For our project, we took advantage on the fact that Catalunya has 61.3% of forest area, making it an ideal place for sustainable wood production and avoiding high C02 emissions from transportation. Our structural approach was based, on our four main concepts for our project: program, thermodynamics, noise control, and structural innovation.
1. Programming:
Since the project is a sport facility, the first things taken into consideration was the different program requirements that needed for each sport, not only space wise but also in impact, weight and amount of people using simultaneously one space.
2. Thermodynamics:
Permeability and air flow through out the whole building was important to keep the structure cool and fresh all year long, especially during Barcelona hot summers. The centric patios where created to act as ventilation chimneys, that later became the main structural element.
3. Noise Control:
For ventilation purposes everything is very porous and open, for a sports facility where there is some loud machinery and/or loud spaces versus some other closer quiet areas is a bit of a challenge. By selecting wood for its acoustic capacity, as well as program distribution and adjacencies the noise control was possible.
4. Structural innovation:
The initial approach trough structure was to use the patios as main structural elements, and to avoid the obstruction of ventilation throughout the project. Taking inspiration from nature, it was possible to develop an organic movement throughout the structure.