NEBULOUS
One house for one person for one year using the energy phenomena a fog for developing a synchronization between man and nature. the fog in the nebulous act as an architectural element that has the property of visual barrier, creating boundaries, thermal comfort, and organizing the function.

Nature is a blessing! all-natural forces occurring in the environment possess huge potential to generate energy that human beings can depend on waves, just like other natural sources of energy like solar, wind, biofuels, etc can be constantly replenished with the natural process. imagine the wonders that energy from waves can do, where 71% of the earth surface is covered with water
The natural law, gravitational between earth-moon, and wind gives birth to waves.
Site
An enormous amount of water would be required to form a visual barrier in and around the dwelling we have nebulous on the bogatell beach.it is located on the existing bed of rocks surrounded by water on all slides. that is 200m away from the shore and 100m away from the tread.

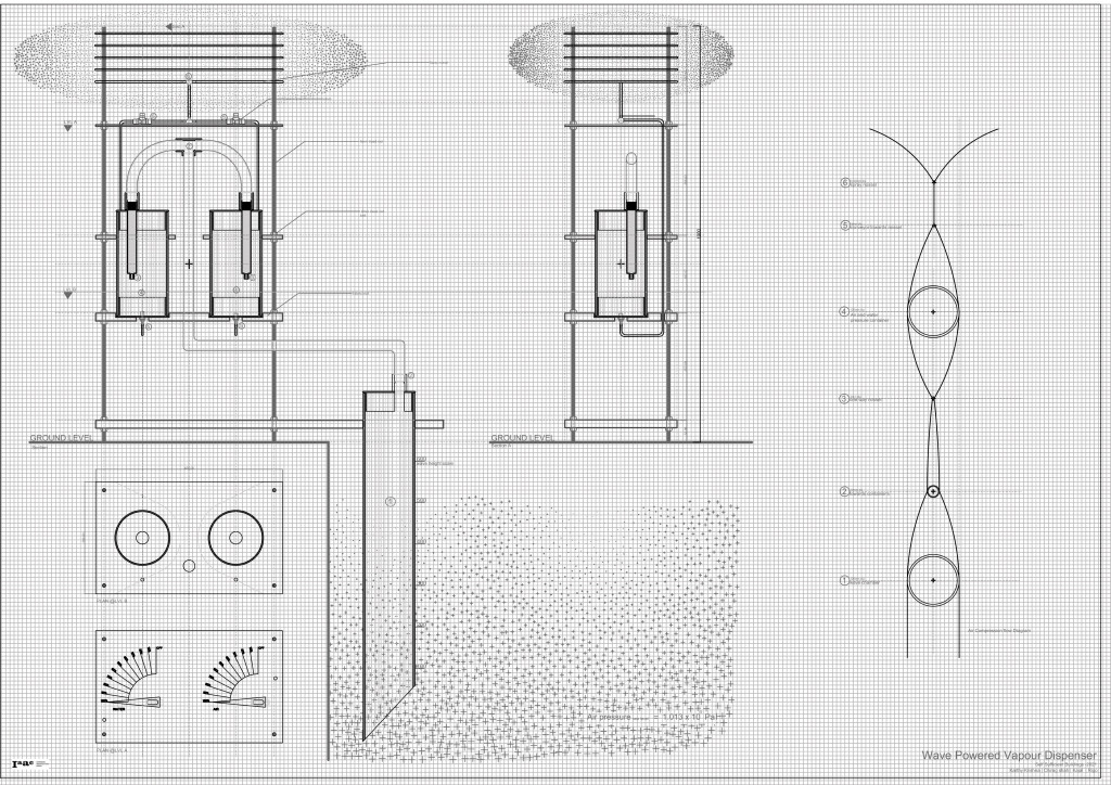
wave power fog machine
We create and control the density and height of the fog by colliding air and water in the proportion of around 97% and 3% respectively at a certain pressure. The pressure required to collide air and water is harnessed from waves using a wave chamber. wave chamber is a cylindrical tube that is emersed in seawater, where the difference in wave height helps to harness pressure. the pressure is then used to power the water and air chamber to produce mist.

Wave analysis
To analyze the intensity of waves along with our site we created a machine with a tube that is fixed with an ultrasonic sensor, that helps us to measure the wave height.
The machine was kept on the site for a day. the graph represents the yearly wave heights data from Barcelona and data that we got from the machine on the 2nd of march.

Energy phenomenon
The graph shows the maximum and minimum wave heights each month which helped us to calculate the amount of pressure that we will be generating yearly.
- THE MAXIMUM HEIGHT IS IN THE MONTH OF MARCH AROUND 1200MM (1.2M)
- THE MINIMUM WAVE HEIGHT IS IN THE MONTH OF JUNE 300MM
- THE HIGHEST TIDE THAT RANGES BETWEEN THE MAXIMUM AND MINIMUM HEIGHT IS SEEN IN THE MONTH OF DECEMBER, HENCE THE HIGHEST AMOUNT OF PRESSURE THAT WE GENERATE IS IN THE MONTH OF DECEMBER 12320N/M SQ.
On the left is the energy phenomenon drawing that shows the relation between the height of the fog with respect to the pressure of wave at a certain height . we could achieve 4000mm of height if the nozzle is powered by 120psi.
Fog Experiment
Powering the nozzle using a pressure container with water and air. The experiment shows the fog intensity power of pressure.
Animation
Reference
El Peine del Viento
Plazas art installation Capture the Oceans Energy

Site plan-deck shape evolution
Site context

Site plan

site plan with the mapping of the shallow surface in the sea bed. after the analysis of the sea bed context based on the series of satellite images the deck got the shape to connect the seashore tread and the site which is 100m away from the tread.
Site plan options

The catalog shows the opportunity of the deck to have a dynamic plan and change the form and function with the help of series of fog nozzle. Integrating the house with the public space.
Design process
sun analysis

The sun shading analysis helped us to place different activities in the project at different times of the year. Where the test object is placed in the deck to understand the thermal effect of the sun.
Plan

The grid of beams with the nozzle system with the screen which are used to reduce the humidity in the interior and to separate wet and dry spaces. the circles show the performance of the fog nozzle.
Plan and section

The section shows the activities in the space and defining the fog form, it gives thermal comfort, visual barrier. the wave chamber is placed at the bottom of the deck it helps to harvest pressure from the waves to create fog.
Piers detail
The piers which hold the deck are bounded to the man-made concrete block in order to withstand the wave.
Technical detail

Sensor Design detail

the following animation shows the working and control mechanism of the sensor where the circle with dot is assumed as human movement and circle with grey shades shows the performance of the fog.

A physical model with fog
Renders



Physical model



Nebulous is a project of IAAC, Institute for Advanced Architecture of Catalonia developed in the Masters of Advanced Architecture 2020/21 by
Students:Karthy Krishna ,Rigoberto Moreno,Chirag Shah,Kajal Unahariya
Faculty Edouard Cabay, Peter Magnus and Stefana Zapuc