SELF SUFFICIENT BUILDINGS // FLUID HABITAT
Fluid habitat is a metabolic system capable of adapting its geometry through the application of a phase changing material in the built environment. It is a concept of floating housing, a structure that is attached to existing buildings, working with their infrastructure. It redefines and reconfigures the built space. Through the application of paraffin wax, the building’s envelope is capable of reshaping itself according to the position of the sun, the amount of heat required and the sound levels desired.

// SITE PLAN
The site is a series of roofs within an urban context. The energies in the site were mapped (sunlight radiation and sources of sound), and also the existing infrastructure (water and drain pipes, water tanks, existing vertical circulation) in order to understand how the system can be attached to them.

// PROGRAM DISTRIBUTION
The program is a combination of student housing and work and study space, all interconnected. The sound, light and temperature requirements for each of the spaces and activities of the program were studied in order to understand how to distribute it in the site and relate it to the use of wax throughout the building.

Based on these requirements, the program was distributed using an evolutionary solver, in order to maximize comfort and efficiency in all of the spaces. The living areas are distributed in three different levels and they all interconnect with the common areas in the center.



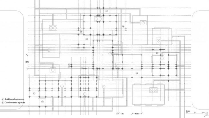
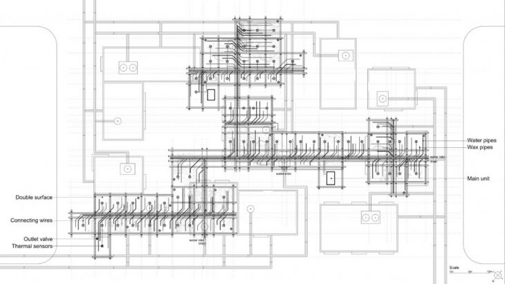
// STRUCTURE
The existing structural grid was studied in order to understand how the new structure could be inserted on top of the buildings. A system of water, wax and drain pipes is controlled by valves and thermal sensors throughout the building.



The overall section relates our plug-in structure to the existing buildings and the connection between levels.

// WAX APPLICATIONS
Paraffin wax is known for its thermal capabilities. When mixed with water, it solidifies and results in geometries ruled by temperature, pressure and volume. The resulting surfaces have a range of applications in architecture: light filtering, sound reflection or thermal insulation.

The surfaces are ruled by three parameters that result from the solidification process: thickness, density and irregularities. Different combinations of those parameters result in different values of thermal and sound insulation, and light transmissivity.

</p>
// APPLICATION IN INTERIOR SPACES
The wax has to be contained when it’s liquid, so we have two typologies of partitions in order to make some parts of the building completely flexible. The partitions can be retractable, and move up when they’re filled with wax, or fixed between the structural panels.

The next sections illustrate how the interior spaces can transform according to use, in 24 hours, using a summer day as example. In the morning, there are privacy walls in the living spaces, and common spaces for relaxation and physical activity. They are all light filled, with the wax surfaces opening up directed to the sun. The west facing wall is completely transparent and open to the views.

In the afternoon, those spaces become work and study areas. The surfaces gain depth in order to reflect sound and prevent echoes. In the common workspaces a lot of light is let in, and the west facing wall now acts in absorbing heat, responding to the increase in temperature.

In the evening, most of the surfaces start acting in light diffusing and transferring temperature. The common area becomes a lecture hall, with surfaces that act in sound distribution.

// PHYSICAL MODEL


// VIDEO
</p>
Beyond any concept of flexibility ever explored, fluid habitat aims to reach complete transformation and adaptation. A new form of architecture that takes a new shape to best perform with the user’s needs, while also achieving energetic balance.
Fluid Habitat is a project of IAAC, Institute for Advanced Architecture of Catalonia developed in the Master in Advanced Architecture 2019/20 by Students: Ahmad AlBaalbaky, Brenda Freitas, Nitha Shivapuram and Faculty: Edouard Cabay, Peter Geelmuyden Magnus, Oana Taut