Abstract:
Marine debris can kill and injure marine wildlife, and cause damage by polluting our coastline. Nowadays, the coastline is becoming one of the factors to support marine debris since nearly 80 percent of it originates from land-based sources. As well as the conflict between the waste that produced near water area, and the one that thrown to water area have created pollution based which need more attention and treatment. This problem is causing the improper function of the public space in-between, which counted as a missing link between the inner city and the waterfront area. This thesis proposes alternate way of using sea-waves (natural force) as part of the urban-link to bridge the inner-city of Barcelona and the shore (from Port Vell till Forum), to create new urban space, through different series of metabolic landscape concept, to enhance both land and marine ecosystem, as well as trapping (to reduce) the marine debris. The workflows and experiments will be based on how the waves could be manipulated without using any external source of energy, forming different types of three-dimensional patterns which could extend the maximum force from natural waves occurred. In this manner, different variables will be used regarding to form the experiments, i.e. velocity, frequency, wavelength, refraction pattern, as well as artificial pattern simulation to implement the waves manipulation. The experiments associate nature and human interactions as part of ecological social-manners with virtual design simulation modeling tools, to obviate the perfect impression of city hypocritism in terms of balance environment, and escalate the possible functional realm of its new urban landscape.

The marine debris consist of million of plastics that hover all around, from land being washed by waves or current to the sea, creating garbage patch in our ocean.
There are 5 gyres right now and it consist of up to 1.5millions of plastics. Therefore, since Barcelona is surrounded by sea, why dont we use the sea itself to prevent the trash / litter to go further creating gyres in Pacific? Besides, the sea waves is natural force that already exist, we just need to learn on how to manipulate it, to create our own gyres so the trash could be easily collected, to learn on how the reformative seascape could affect the shore or as well as shaping the users.
Doing the seascape manipulation has to be done with firstly increasing the waves height using the artificial seabed since Barceloneta is quiet low in wave level (average 70cm). The increase waves will also affecting the refraction or bending direction of the waves, creating more force. With the improved wave height and frequency, it will as well affecting waves envelope (the amplitude) that becomes the factor of the whirl of the gyres.
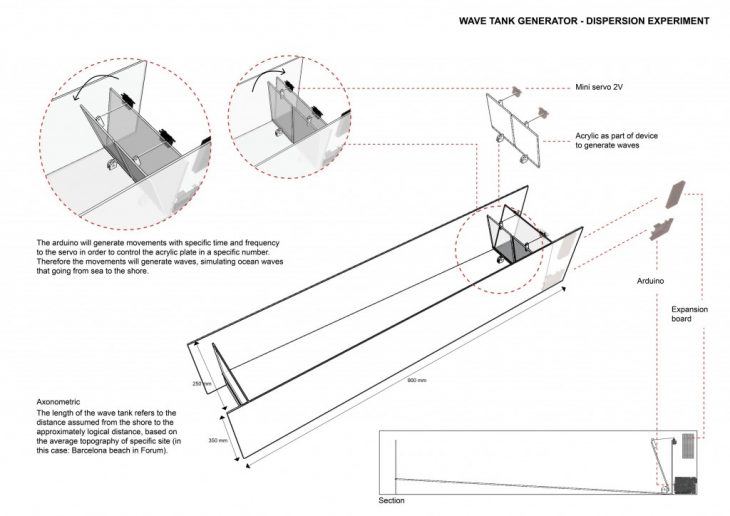
Therefore, an experiment with different pattern of barrier to recreate the gyres was conducted, using a wave tank generator (with arduino and servo) to create movements of the waves (referring to the increased waves from artificial seabed), and then the patterns barrier was placed. To test the whirl or the trap, the ink solution was poured to detect the pattern of the whirl. There are 24 test patterns but there are ones that the best, it could retract the ink back and trap it, prevent it to spread further (showed in presentation).
Extensively, the implementation on the design will be the logical concept, hypothetically placed in between the land and the sea, creating the interfuse area to trapped the litter and further to be collected and to be recycled. The seascape shows the alternate way to reconstruct the sea and the waves, reforming the shore, bringing impact in enhancing sea ecosystem. It also will reform the shore since Barcelona’s shore is a sandy beach full of tourist and litter. The project itself could shifting how the tourism in Barcelona are going later on, shifting the functions, reshaping the user’s mindset. So this seascape logic proposal is the beginning of the real concept proposal that still needs a lot of adjustment and deeper research, but the logic and the process behind it is the one that makes the critical thinking in order to reform the urbanity in metabolic environment.
Since natural waves are the one which being used, means it can not be controlled / manipulated fully. Therefore the implementation in other areas (beside the specific site studied; Forum area) will have a different analysis due to different source of waves and its altitudes, which may lead to different variables involved.
Further implementation of this research could range from being part of ecological project which leads to nature and sustainability (i.e: zero waste energy / zero run off) up to establish new urban space function which expand to the level of marine educational tools. By having the approach towards this practice, it creates the enthusiasm to turn this project into a real life scale, to see the real impact in terms of its relationship with its environment. Therefore the project will not become only tools but as well as the process and synchronization to achieve better ecosystem concept, improving the nature and socio-character of the users too.
Reformative Seascape is a master thesis project of IaaC, Institute for Advanced Architecture of Catalonia
developed at Climatic Matter research line, Master in Advanced Architecture (MAA02) in 2017 by:
Student: Anastasia Stephany Marcella
Faculty: Lluis Viu Rebes + Jordi Pages