Home
About
Projects
Programmes
IAAC Life
IAAC Blog 2022
Iaac
Educational Programmes
Program
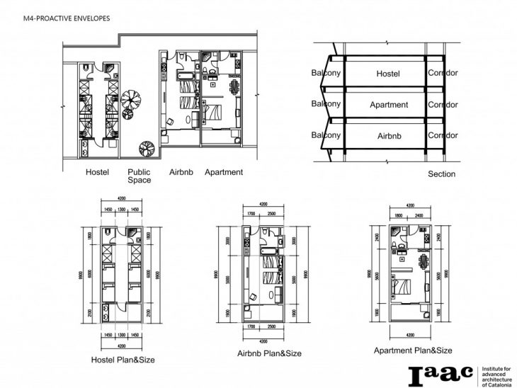
PROACTIVE ENVELOPES_Vertical Gardens
zhang.jie
May 14, 2019
0
0
PROGRAM
MAEBB
COURSE
MAEBB
PROACTIVE ENVELOPES
MAEB-IAAC 2018-19
Jie Zhang & Heran Zu Group