INTRODUCTION
Weaver Bird Nest
Weaver bird nests are extraordinary structures. Most individual nests are cylindrical in shape, with downward-facing, narrow entrances that are usually situated over or next to water. Ensuring that the entrance faces downwards and is as narrow as possible deters thieves and potential predators. Some nests even have a long tube, extending the entrance further beneath the nest body.

theapricity.com
Ovenbird Nest
The nest, referred to as the “oven” (which gives the bird its name), is a domed structure placed on the ground, woven from vegetation, and containing a side entrance. The entrance chamber acts as a buffer that keeps the egg chamber protected from predators and other external forces.

theapricity.com

ctlsites.uga.edu
CASE STUDIES
Micro Courtyard House, 2018
7 m2
Ludwigsburg, Germany
Atelier Kaiser Shen
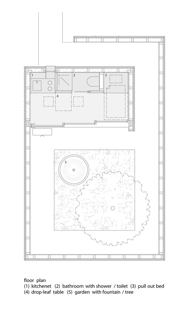
Atelier Kaiser Shen designed the residence as a new approach to dealing with “living in minimal space”. This tiny cabin is built on two thick wooden sleds so it can be towed of the beach and out of harm’s way. The aesthetic is naturalistic, with unpainted timber evocative of wind and sand-blasted timber of beach-side structures.
The interior is secluded from the outside, with only a spiral entrance leading curiously inside. At merely 7.3 square meters, the Micro Courtyard house
contains all of the required utilities. The bathroom, cupboards, and kitchen have a depth of 85 cm and are arranged along the main wall, which also features a foldable table and bed. A square window along this wall connects the living area to the outside world. Opposite to this side, a long glass door spanning the entire length of the house loosely separates the living space from the tranquil garden.

archdaily.com

archdaily.com
CONCEPT

Nest 1.0

Nest 2.0






The Nest – Concept Design is a project of IaaC, Institute for Advanced Architecture of Catalonia
developed at the Masters in Advanced Ecological Buildings and Biocities in 2019/2020 by:
Students: Maitri Joy Uka
Faculty: Michael Salka, Jordi Prat, Daniel Ibañez, Vicente Guallart