Water as Medium
With water making up 70% of both planet earth and the human body, we dive into the relationship between human, architecture and water to explore the extent to which water can define the spaces we inhabit and our lifestyle in relation to it. Energy being intangible, is difficult to visualize but water holds the ability to carve, move, reflect, and respond and its power is a medium with which we can make this energy evident. We explored the phenomenon of gravitational potential energy in order to circulate water and to shape a new way of living in response to the environment.
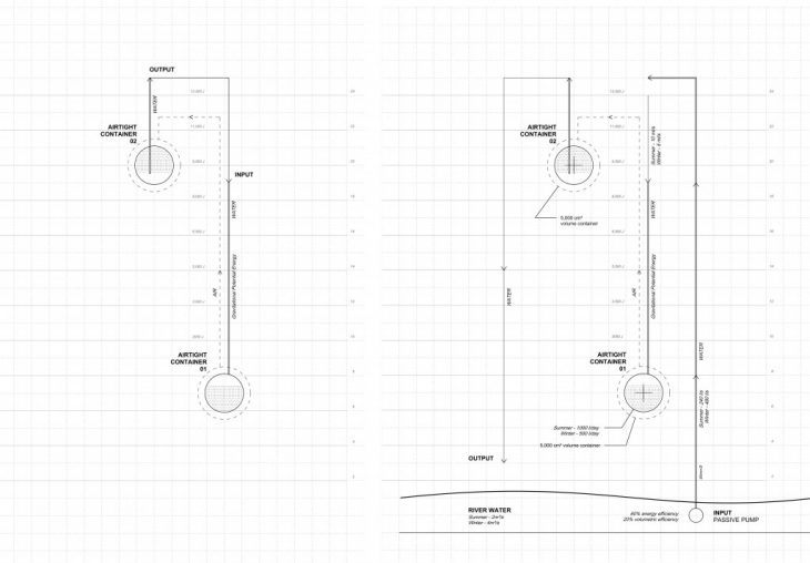
Gravitational Potential Energy
Gravitational potential energy is the energy stored as the result of its vertical position or height. Hence, the greater the height, the higher the energy. We explored the potential of this phenomenon through a hydropneumatic water system. With this system we are able to circulate water vertically while optimizing the distance and speed at which the water can travel.

For the system to work, we need two containers at different heights, an input tube where the water will enter the system, an air connection between container one and container two, and a tube transferring the water out of container two. As water is poured into the first container, the air in it is pressurized. This pressure is transferred to the second container, which in turn forces the water out of it. This cycle continues until the second container is empty.
</p>
In this schematic drawing, we studied the height relationship between containers, the tube diameters, the organization of containers within a vertical structure, and the pressure and time relationship to the energy flow. From this, we found that with a larger height difference between container one and container two and with smaller diameter tubes we can create more pressure and therefore the system will operate more efficiently. Stacking the containers also had a positive effect on the system.

For our proposal we adapted the system to an open loop cycle with an input and output so that the system can continually operate based on the changes in river condition and at the end of each cycle, return the water back to the river. In this adapted system we aim to keep the water within the structure for as long as possible. The environmental conditions and way of living within the house is directly related to the changes in climate and to the changes in the river over the course of 24 hours and one year.
River Besos
The site we chose for our house is on the River Besos in Barcelona. The river has undergone a series of renovations to prevent excessive flooding which introduced a low flow channel with a narrower cross section and a higher quantity and velocity of water flow at the center. Falling Water 2021 was envisioned as an inhabitable vertical extension of the river.


To literally ‘test the waters’ we were stepping into, we designed a device to calculate the speed of water in the river. The device is made up of four elements- the turbine, the rotary sensor and gear and a vertical structure that contains it.
This device is inserted into the river bed so that the turbine is submerged in the water and spins with the flow of water. The number of rotations per minute is studied and this data enables us to calculate the speed of the water.
By inserting our device into different locations along the river, we were able to find the ideal location for the house. It was tested in the centre of the river, which had the maximum depth, and highest flow of water.


</p>
Evaporative Cooling and Heating
At two points within the cycle the water leaves the airtight containers and interacts with the surrounding environment and climatic conditions. These two areas therefore have the greatest impact on the internal spaces and how long the water remains in the system. At these points, we take advantage of the sun and wind to create two facade locations, one for heating and one for cooling. The structure was designed to hold the system and to organize the spaces relative to the two facades.
In the first section that introduces an evaporative cooling facade, the water spends less time within the system and therefore enters the space with the same temperature of the river at around 20 degrees celsius. In this section the evaporative cooling facade will slow down the speed of the water and create more surface area for the water to be heated. The heated water enters into container one which creates pressure for water to leave container 02.
Once leaving container 02, water is stored and heated through shallow pools and storage containers. By controlling the flow of water in this section we use the heat from the sun to raise the temperature of the water to 30 degrees celsius for the heating facade around spaces where heated water is desirable such as bathing, etc.. In this section we utilize the greenhouse effect.


When studying the potential of evaporative cooling, we drew inspiration from the Salsabil used in Islamic architecture. The Salsabil uses a marble plate with geometric carvings on it. The water flows in a thin sheet, over a wavy surface, in a manner designed to maximize the surface area and thus evaporation
We designed our own evaporative cooling facade to reduce the speed with which water flows through it and to control the path of flow to the desired locations. With these iterations, we derived the shape of the pattern within the facade by testing the same quantity of water against time.


The facade was designed parametrically to relate to the spaces within the house. The spaces which need to be cooled more, have a denser pattern so as to hold more water. The Genetic Solver evaluates thousands of iterations to find the maximum amount of water that the facade can hold while falling. The graph indicates all the different possible solutions of the genetic solver.

To further understand the environmental conditions on the site, we studied the annual rainfall. In October, when the rainfall is the highest, there is more flow of water in the river. This is when the system works the best. The daily temperature graph in summer showed that our system would need to flatten the heat curve by 8 degrees celsius. Whereas the daily temperature graph in winter showed that our system would need to increase the temperature from 5°C up to its greatest potential during the winter. The spaces are governed by summer and winter fades, vertical circulation towards north.

Water from river Besos is filtered and then pumped into our house using a passive ram pump. This animation shows the 3 energies activating our project over the entire year. Wind, flow of water in the river and the ambient temperature. The spaces have been organised as per temperature and how one space connects to the other vertically. Spaces are organized around the movement of the sun and the time during the day which the space is occupied. Rest – rising sun, dining – setting sun. Bathing – bottom for warmest water. Highest cooling potential at top of structure
</p>
To what extent can water define the space we inhabit and can our lifestyle revolve around changes in water relative to the environment?


The One3 House: Falling Water 2021 is a project of IAAC, the Institute for Advanced Architecture of Catalonia, developed in the Master in Advanced Architecture (MAA01) 2020/21 by students: Uri Lewis Torres, Michelle Bezik, Aniket Vijay Sonawane, Hairati Tupe; faculty: Edouard Cabay; faculty assistant: Peter Geelmuyden Magnus; student assistant: Stefana Florina Zapuc.