Collective housing project with shared spaces in Mexico City

Section-perspective
The project of collective housing developed during the second module of the Master in Mass Timber Design explores how we can simultaneously live together and independently in the future. Increased urbanization in Mexico city which as well pushed the growth of the prices of the apartments forced people and especially students to live together and share the areas.
But can one by sharing spaces live more spaciously? Can we have a reduced per capita square meter consumption while maintaining a comfortable way of living?

Exploded axonometrie and the main facade
Site conditions:
To respond to such questions I decided to focus myself on the area of the National Autonomous University of Mexico. By analyzing it I realized that there are no housing residents for students. Such unique site conditions with the soil of volcanic rock, emblematic buildings representing Mexican modernism, murals from the most important artists of that time inspired me to develop a building with the reminder of the past but introducing new and innovative for Mexico material as mass timber.
Mass timber structure of the building:

Structural diagram
My proposal benefits from the common spaces and services which helps to reduce the need for a private sphere. It is possible to maintain a high standard of living and still contribute to a decreased square meter per inhabitant. The whole shape of the building is a reminder of the symbolic brutalism but in this case the structure was designed of mass timber elements such as glulam columns, beams and rib panels made of CLT and glulam beams. The overhang is around 5 meters so that is the reason for the impressive size of the elements used. As a result the building stands on its own, as a sculpture.
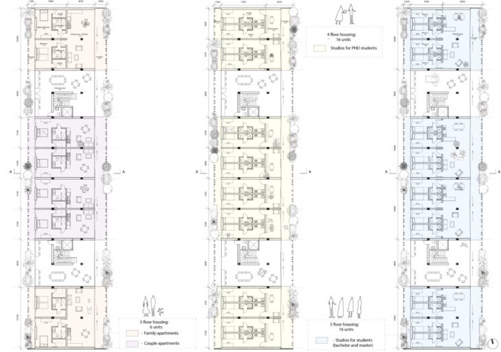
Apartments for different types of students:

Plans of the levels with the apartments for students
Using mass timber as building material for collective housing has many benefits: The reduction of the carbon footprint is obvious, the hygroscopic qualities of wooden surfaces contribute to a comfortable indoor climate, the prefabrication allows fast, precise and clean construction of the building. Such a building can be beneficial not only for students but for the whole community that can gather in public zones, can enjoy sports facilities, visit the library or the cafeteria or just enjoy the shadow produced by the building on sunny days.

Images illustrating the paths of bachelor/master and PHD students