
Credit Milena Villalba
The project is the winner for the plot on Espronceda street (Poblenou) in the public competition for municipal plots for cooperative housing. The proposal for La Balma (Techo Cívico cooperative) was made jointly with the La Boqueria cooperative.
The objective of the cooperatives is to facilitate and guarantee access to decent and affordable housing for their members, with a maximum quota set according to the legislation at € 7.82 / m2. La Balma provides the opportunity to make this possible.
From a realistic position that takes into account the available resources, the focus is placed on the initial costs of construction and on the use of the building throughout its lifespan, considering the final economic impact on the user, as well. In addition, we propose that the building acts as a “refuge for energy scarcity”, and that the cost to obtain the comfort of the homes is reduced by more than 50%. During the competition phase, a socioeconomic diagnosis of the group of inhabitants and a participatory process have been carried out to reach a consensus and a proposal, where the user and the community play a main role, while the building is the infrastructure that accompanies them. This allows them to evolve freely from three social spheres: the neighbourhood, the community, and the homes.
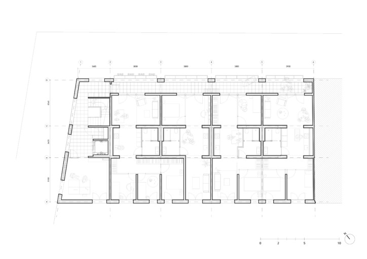
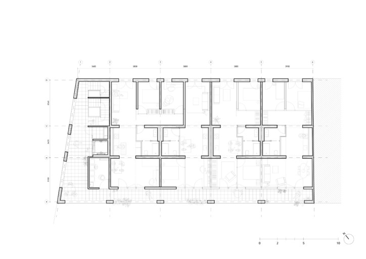
The building has 20 apartments, of which one will be used as a bridge for families in the process of social reintegration. The apartments are designed from a grid of 16m2 open-plan pieces that coincide with the cross-laminated wooden structure. These pieces allow very diverse divisions and distributions, permitting the user to affect their spaces. Each apartment starts from a fully equipped 50m2 base, corresponding to the small typologies (S). This basic unit is expanded with one or two pieces, becoming M or L typologies. The pieces that allow this extension are spaces managed by the cooperative. This management allows a real flexibility of the system, and the apartments appropriate them in an individual or shared manner.
There are two types of structure that optimize the functions of each material, cost, speed of construction and environmental impact. In contact with the terrain and the street, there is a reinforced concrete structure (minimal mineral material). For apartments and community spaces, a cross-laminated wooden structure is proposed, offering comfortable healthy spaces that have a very positive environmental impact on the whole building (organic and light material). It is a light building, where reusable and removable materials predominate, which allows to reduce the foundations the materials of mineral origin used in the building.

Floor plan type 1

Floor plan Type 2

Section 1:50

Axonometry Structure

3D Axonometry

Detail

Life Span of Building Components
Case Study – Lacol + LaBoqueria – La Balma Collective Housing is a project of IAAC, Institute for Advanced Architecture of Catalonia developed at MMTD in 2021/2022 by student Ricardo Cruz Recalde and Jack Byrne. Faculty: Vicente Guallart. Course: MMTD02 – Cases 2