
Located in Madrid’s downtown, this multifamily mid-rise building is the first intersticial residential building that uses CLT panels as the main structural elements in the city.

The building has been awarded with the first BREEAM excellence certification for a residential building in Spain. Each material for this building was carefully selected for its sustainable qualities and life cycle analysis.

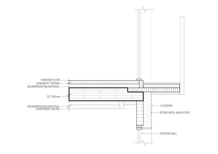
The building uses high quality assemblies to achieve greater thermal and acoustical insulating values, the CLT vertical panels have a furring wall with an insulated cavity. The CTL bearing walls were designed to have different thicknesses thus optimizing the structural elements and reducing the construction costs.


The material ecology analysis results describes how only roughly seventy eight trees were needed for this building, the previous figure represents only one fifth of and hectare in a timber plantation.

Case Study: Buenavista Housing (© b720, 2022) is a project of IaaC, Institute for Advanced Architecture of Catalonia developed at Master in Mass Timber Design in 2022 by Students: Nataly Dirocie, Julio Javier Ramirez Argaiz. Faculty: Vicente Guallart